Preis erneut gesenkt 2 Zimmerwhg + große Küche + Whirlpool + 116qm Gewerbefläche in zentraler Lage !
Diese besondere Immobilie in Wilhelmshaven bietet eine seltene Kombination aus großzügigem Wohnen und angeschlossener Gewerbefläche – ideal für Eigennutzer, Betreiber oder Kapitalanleger. Im Mittelpunkt steht dabei die gut geschnittene Wohneinheit, die komfortables Wohnen mit kurzen Wegen zum gewerblichen Bereich verbindet.
Die Wohnung ist über einen kleinen Flur mit dem Gewerbeteil verbunden, verfügt jedoch zusätzlich über einen eigenen separaten Eingang. Sie bietet zwei gut geschnittene Zimmer, eine geräumige Küche, ein großes Badezimmer sowie ein weiteres separates WC. Die klare Raumaufteilung schafft angenehme Wohnverhältnisse und eignet sich hervorragend zur Eigennutzung – beispielsweise als Betreiberwohnung – oder alternativ zur separaten Vermietung, etwa an Mitarbeiter oder Gäste.
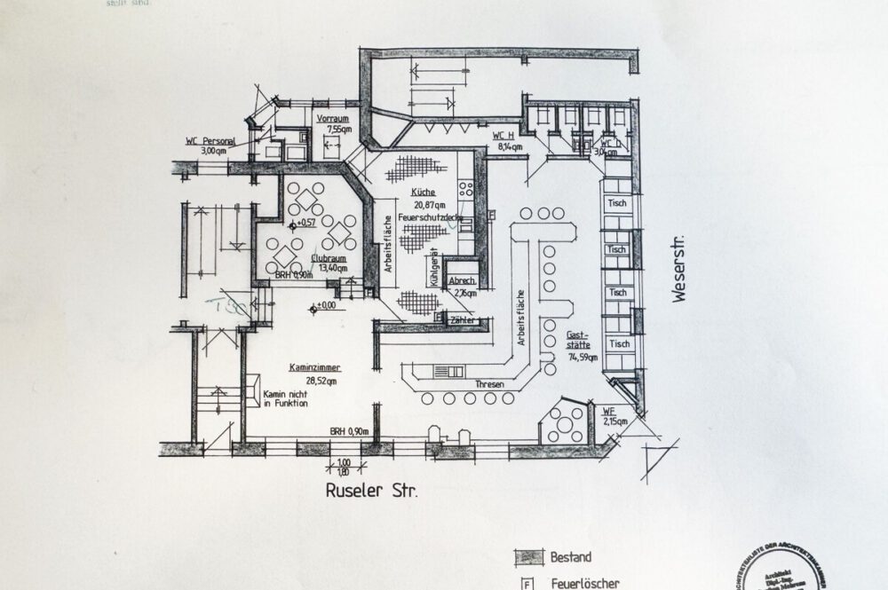
Ergänzt wird die Wohnimmobilie durch eine großzügige ehemalige Shisha-Bar im Erdgeschoss, die vielseitige Nutzungsmöglichkeiten eröffnet. Der gewerbliche Bereich verfügt über einen sehr großen, offen gestalteten Hauptraum, der sich ideal für eine Lounge, Bar, Shisha-Bar, ein Café oder möglicherweise auch als Büro eignet. Ein zusätzlicher Clubraum kann beispielsweise als separater VIP-Bereich genutzt werden. Eine angeschlossene Küche ermöglicht die gastronomische Versorgung. Zwei separate WC-Räume für Damen und Herren sowie ein kleiner Vorraum runden das Raumangebot auf der Gewerbeseite ab.
Die Verbindung beider Bereiche ermöglicht einen reibungslosen Ablauf im Alltagsbetrieb und bietet zugleich eine klare Trennung zwischen Wohnen und Arbeiten. Damit entsteht eine flexible Immobilie mit vielfältigen Nutzungsmöglichkeiten in zentraler, gut erreichbarer Lage von Wilhelmshaven.
Diese Immobilie müssen Sie gesehen haben !
Sie wollen solide finanzieren ?
WIR bieten den Rundum-Service.
Als freie Finanzierungsmakler sind wir bankenunabhängig, finden aus einem Pool von über 400 Banken und Kreditinstituten tagesaktuell die Top-Konditionen:
https://www.immobilienfinanzierung-keusch.de/onlinerechner.php
Alles kostenfrei & unverbindlich
#######################
Was ist Ihre Immobilie wert ?
Wir sagen es Ihnen – kostenfrei.
Kennen Sie den derzeitigen Verkehrswert Ihrer Immobilie? Veränderte Wohnbedürfnisse im Alter, beruflicher Ortswechsel, eine Immobilienerbschaft oder ein Neuanfang nach einer Scheidung – es gibt viele Gründe, eine Immobilie zu verkaufen. Am Anfang steht in allen Fällen die Ermittlung eines realistischen Verkaufspreises.
Wir freuen uns von Ihnen zu hören/ lesen.
Ihr verantwortlicher Ansprechpartner in unserem Hause ist Markus Keusch, erreichbar unter 04202 50 61 550.
Bitte geben Sie uns bei Ihrer Kontaktaufnahme Ihre Rufnummer sowie E-Mailadresse an.
| Objekt ID: | 2026-377 |
| Verfügbar ab: | Frei |
| Kaufpreis: | 111.000,00 EUR |
| Nebenkosten: | 400,00 EUR |
| Provision für Käufer: | 3,57% |
| Zimmer: | 5 |
| Wohnfläche: | 64,02m² |
| Grundfläche: | 164,02m² |
| Gesamtfläche: | 228,04m² |
| Verkaufsfläche: | 116,51m² |
| Etage: | EG |
| Baujahr: | 1906 |
| Objektzustand: | renovierungsbedürftig |
| Lagerfläche: | 47,51 m² |
| Teilbar ab: | 42 m² |
| Tagungsräume: | 1.00 |
| Bodenbelag: | Fliesen, Laminat, Kunststoff |
| angeschl. Gastronomie: | Bar |
| Energieausweis-Jahrgang: | ab Mai 2014 |
| Energieausweis-Gebäudeart: | Wohngebäude |
| Distanz zum Flughafen: | 3,6 km |
| Distanz zum Fernbahnhof: | 0,8 km |
| Distanz zur Autobahn: | 4,6 km |
| Distanz zu Bushaltestelle: | 0,1 km |
| Distanz zum Kindergarten: | 0,4 km |
| Distanz zur Grundschule: | 0,0 km |
| Distanz zur Realschule: | 0,9 km |
| Distanz zum Gymnasium: | 0,7 km |
| Distanz zum Zentrum: | 0,9 km |
| Distanz zu Einkaufsmöglichkeiten: | 0,9 km |
| Distanz zu Gaststätten: | 0,3 km |
| Befeuerungsart: | Gas |
| Baujahr lt. Energieausweis: | 1998 |
| Energieeffizienzklasse: | G |
| Wert des Endenergiebedarfs: | 218,30 kWh/(m²*a) |
| Art des Energieausweises: | Bedarf |
| Gültigkeit des Energieausweises: | 02.01.2027 |
Die Immobilie befindet sich in einer ruhigen Seitenstraße im beliebten Stadtteil Heppens, nahe dem Zentrum von Wilhelmshaven. Die Lage überzeugt durch ihre gute Erreichbarkeit, sowohl mit dem Auto als auch mit öffentlichen Verkehrsmitteln. Einkaufsmöglichkeiten, Gastronomie, Schulen und Dienstleister befinden sich in unmittelbarer Umgebung. Auch der Hauptbahnhof und die Fußgängerzone sind in wenigen Minuten erreichbar.
https://de.wikipedia.org/wiki/Wilhelmshaven
Aufteilung Gewerbe:
NEU als Büro oder Ladenfläche, oder ?
•Sehr großer Hauptraum mit offenen Sitzbereich
•Separater Clubraum
•Küche mit direkter Anbindung an den Gastraum
•Zwei getrennte WC-Räume (Damen & Herren)
•Kleiner Vorraum und Flur mit Verbindung zur Wohneinheit
Aufteilung Wohnung:
•Zwei helle Zimmer (Wohn- und Schlafzimmer oder Büro & Schlafbereich)
•Geräumige Küche mit Tageslicht
•Großes Badezimmer mit Whirlpool-Badewanne oder Dusche
•Separater WC-Raum
•Zentraler Flur
Fußböden: Fliesen, Laminat, Vinyl
Vereinbaren Sie jetzt Ihren persönlichen Besichtigungstermin.



































