Preis deutlich gesenkt!! Großzügig Wohnen + Gewerbe auf großem Grundstück mit viel Platz – 4 Garagen
In Stuhr-Fahrenhorst erwartet Sie ein außergewöhnlich großes Anwesen mit vielseitigen Nutzungsmöglichkeiten. Auf einem Grundstück von über 3.500 m² vereinen sich ein Ein- bis Zweifamilienhaus, zwei große Werkstätten, zwei mögliche Einliegerwohnungen sowie vier großzügige Garagen.
Das Haupthaus verfügt über sechs helle, gut geschnittene Räume, die sich ideal als Wohn-, Schlaf- oder Arbeitsbereiche nutzen lassen. Große Fensterflächen sorgen für viel Licht und eine freundliche Wohnatmosphäre.
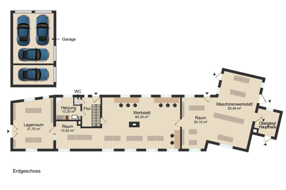
Die angrenzende Werkstatt mit direktem Zugang umfasst drei große Räume und eignet sich hervorragend für Handwerk, Hobby, Lager oder gewerbliche Zwecke. Ergänzt wird sie durch einen separaten Bereich mit Küche, Dusche und WC – praktisch als Sozial- oder Aufenthaltsräume.
Im Obergeschoss der Werkstatt befinden sich zusätzlich zwei Wohnungen, die flexibel als Mitarbeiterunterkünfte oder zur Vermietung genutzt werden können. Damit verbindet die Immobilie Wohnen, Arbeiten und Investieren auf ideale Weise.
Ein weiteres Highlight ist die Garage, die Platz für bis zu vier Fahrzeuge bietet. Sie eignet sich sowohl als sichere Unterstellmöglichkeit für Autos als auch als zusätzliche Lager- oder Arbeitsfläche.
Dieses Anwesen eröffnet zahlreiche Möglichkeiten – vom großzügigen Familienwohnsitz über die Kombination mit gewerblicher Nutzung bis hin zur Kapitalanlage mit attraktiven Vermietungsperspektiven.
Diese Immobilie müssen Sie gesehen haben !
Sie wollen solide finanzieren ?
WIR bieten den Rundum-Service.
Als freie Finanzierungsmakler sind wir bankenunabhängig, finden aus einem Pool von über 400 Banken und Kreditinstituten tagesaktuell die Top-Konditionen:
https://www.immobilienfinanzierung-keusch.de/onlinerechner.php
Alles kostenfrei & unverbindlich
#######################
Was ist Ihre Immobilie wert ?
Wir sagen es Ihnen – kostenfrei.
Kennen Sie den derzeitigen Verkehrswert Ihrer Immobilie? Veränderte Wohnbedürfnisse im Alter, beruflicher Ortswechsel, eine Immobilienerbschaft oder ein Neuanfang nach einer Scheidung – es gibt viele Gründe, eine Immobilie zu verkaufen. Am Anfang steht in allen Fällen die Ermittlung eines realistischen Verkaufspreises.
Wir freuen uns von Ihnen zu hören/ lesen.
Ihr verantwortlicher Ansprechpartner in unserem Hause ist Markus Keusch.
Sie erreichen ihn gerne unter 04202 50 61 550.
Bitte geben Sie uns bei Ihrer Kontaktaufnahme Ihre Rufnummer sowie E-Mailadresse an.
| Objekt ID: | 2025-350 |
| Verfügbar ab: | Frei |
| Kaufpreis: | 379.000,00 EUR |
| Kaufpreis Stellplatz/Carport: | 1 EUR |
| Kaufpreis Garage: | 1 EUR |
| Provision für Käufer: | 3,57% |
| Zimmer: | 13 |
| Schlafzimmer: | 6 |
| Badezimmer: | 2 |
| Wohnfläche: | 237,35m² |
| Grundstücksfläche: | 3.552,00m² |
| Grundfläche: | 311,00m² |
| Etagen: | 2 |
| Baujahr: | 1934 |
| Objektzustand: | renovierungsbedürftig |
| Anzahl Außenstellplätze: | 6 |
| Außenstellplatzkaufpreis: | 1 € |
| Anzahl Garagenstellplätze: | 4 |
| Stellplatzkaufpreis (Garage): | 1 € |
| Stellplätze: | 10 |
| Separate WCs: | 1 |
| Terrassen: | 1 |
| Energieausweis-Jahrgang: | ab Mai 2014 |
| Energieausweis-Gebäudeart: | Wohngebäude |
| Distanz zum Flughafen: | 10,3 km |
| Distanz zum Fernbahnhof: | 6,9 km |
| Distanz zur Autobahn: | 5,5 km |
| Distanz zu Bushaltestelle: | 0,6 km |
| Distanz zum Kindergarten: | 2,7 km |
| Distanz zur Grundschule: | 3,3 km |
| Distanz zur Hauptschule: | 12,3 km |
| Distanz zur Realschule: | 8,7 km |
| Distanz zum Gymnasium: | 8,8 km |
| Distanz zum Zentrum: | 10,0 km |
| Distanz zu Einkaufsmöglichkeiten: | 8,0 km |
| Distanz zu Gaststätten: | 0,2 km |
| Befeuerungsart: | Öl |
| Baujahr lt. Energieausweis: | 2013 |
| Energieeffizienzklasse: | H |
| Wert des Endenergiebedarfs: | 362,24 kWh/(m²*a) |
| Art des Energieausweises: | Bedarf |
| Gültigkeit des Energieausweises: | 15.09.2035 |
Fahrenhorst ist eine ländlich geprägte Wohnlage am südlichen Rand der Gemeinde Stuhr. Die Umgebung bietet viel Natur und Naherholung – wie etwa den Warwer Sand. Verkehrstechnisch ist der Ort hervorragend angebunden: über die B 439 zur überregionalen B 51 in Richtung Autobahn und Bremen. Lokale Versorgungseinrichtungen und Gastronomie sind in wenigen Minuten erreichbar, wodurch Fahrenhorst sowohl Rückzugsmöglichkeit als auch lebenswertes Wohnumfeld vereint.
Alles Wissenswerte über Fahrenhorst finden Sie hier:
https://de.wikipedia.org/wiki/Fahrenhorst_(Stuhr)
Diese unglaublich praktische Gewerbeimmobilie bietet Ihnen:
– Großes Wohnhaus mit 6 hellen Räumen
– Angrenzende Werkstatt mit 3 großen Räumen + seperater Küche, Dusche & WC
– Zwei zusätzliche Wohnungen im Obergeschoss der Werkstatt
– Garage mit 4 Platz für bis zu 4 Fahrzeugen
– Grundstücksfläche 3.552 m²
– Flexible Optionen für Wohnen, Arbeiten und Vermietung
Vereinbaren Sie jetzt Ihren persönlichen Besichtigungstermin.




























































